Betonarme İstinat Duvarı
-
Normal Fiyatı:
12000 TL - Güncel Fiyatı: 10000 TL (KDV DAHİL)
- Toplam: 10000 TL
PYNDA V4 BETONARME İSTİNAT DUVARI
PYNDA-CAD V4 betonarme istinat duvarlarının en hızlı, kolay ve optimum tasarımını yapan bir programdır.
TBDY-2018’ e tam uyumludur. İstinat duvarının yatay yer değiştirmesini sonlu elemanlar metodu ile hesaplamakta ve r kat sayısının uygunluğunu TBDY-2018 Tablo 16.7’ yi dikkate alarak kontrol etmektedir.

İstenilen dayanımda beton sınıfı tanımlanabilmektedir.

20 adet yük durumu için deformasyon çizimi.

20 adet yük durumu için iç kuvvet diyagramı çizimi.


Sürzaj, topuk yükü ve ön yüzüne su yükü rahatlıkla uygulanabilmektedir.


Kritik bölgeden geçirilen kayma daireleri ile toptan göçme analizi yapılabilmektedir.
Çözümler İsveç dilim metodu kullanılarak TBDY-2018’ e göre elde edilmektedir.

Tüm betonarme hesaplarda donatı çapı ve aralıkları anlık değiştirilerek optimum donatı sayısı ve aralığı TS 500 (2000) ve TBDY-2018’ e göre hesaplanmaktadır.
Çirozlar yönetmelikte verilen şartlar dikkate alınarak kontrol edilmektedir.
Sehpa demirleri Euler kritik burkulma yükü dikkate alınarak hesaplanmaktadır.

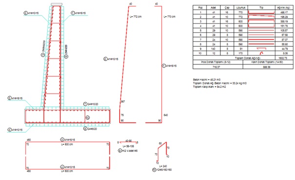
İstinat duvarının en kesit çizimi anlık yapılabilmektedir.

İstinat duvarının donatı çizimi pozlandırılması anlık yapılmaktadır.
Beton, kalıp ve donatı metrajları anlık hesaplanmaktadır.
Donatı/Beton oranı verilmektedir.
İstinat duvarının en kesit çizimini doğrudan yazıcıdan antetli olarak alınabilir veya DXF formatında AUTOCAD’ e aktarım yapılabilir.

Tüm pozlandırılmış donatıların boy kesit çizimi yapılabilmektedir.

İstenilen sayıda drenaj ve barbakan tanımlanabilmektedir.

Tüm hesap raporları A4 boyutunda hazırlanmakta olup pdf formatında kaydedilebilir.
Bu Web Sitesi Dijiloft Web Tasarım Hizmetleri Tarafından Hazırlanmıştır

